기술데이터

  • 기술데이터
  • 기술데이터
E-POWER EPW17 스윙드라이브 + 서보모터 장착가이드(간편한 조립형)

관리자 │ 2025-06-02

HIT

512



안녕하세요.

산업용 구동 솔루션 전문기업 E-POWER입니다.

오늘은 EPW17 스윙드라이브에 서보모터를 장착하는 방법과 장점에 대해 소개드립니다.

정밀하고 튼튼하면서도 누구나 쉽게 조립 가능한 구조를 원하신다면 이번 포스팅을 주목해 주세요!










✅ EPW17 × 서보모터 조합, 왜 좋을까?

EPW17은 중형급 회전 구동이 필요한 설비에서 주로 사용되며, 서보모터와의 결합을 전제로 정밀하게 설계되어 있습니다.

후렌지(플랜지) 타입으로 설계되어 있어 별도 가공 없이 바로 조립이 가능합니다.











기본구성

  • ​EPW17 스윙드라이브 본체
  • 후렌지(모터 마운팅 플레이트)
  • 커넥터 샤프트(키 홈 가공)
  • 서보모터(예: 750W, 220V, 3000rpm, 감속기 포함)
  • 볼트 4EA(M8*1.25)













조립방법
  1. 후렌지 고정
  2. EPW17 본체의 입력부에 후렌지를 2볼트로 먼저 고정합니다.
  3. 샤프트 삽입
  4. 키홈 방향을 맞춰 커넥터 샤프트를 서보모터 축에 삽입합니다.







고정핀 또는 세트 스크류로 고정
  1. 서보모터 장착
  2. 후렌지 상단에 서보모터를 올려서 볼트 4EA로 단단히 체결합니다.
  3. 전기 커넥터 연결
  4. 서보앰프와 통신선, 전원선을 연결합니다.
  5. 구동 테스트
  6. 저속으로 회전 테스트 후 정상 작동 확인 -> 조립 완료!








EPW17 + 서보모터의 장점
누구나 쉽게 조립 가능
정밀 키 홈 정령 -> 동력 손실 최소화
현장 대응 시간 단축
다양한 장비에 적용 가능(AGV, 건설장비, 자동화 장치 등)





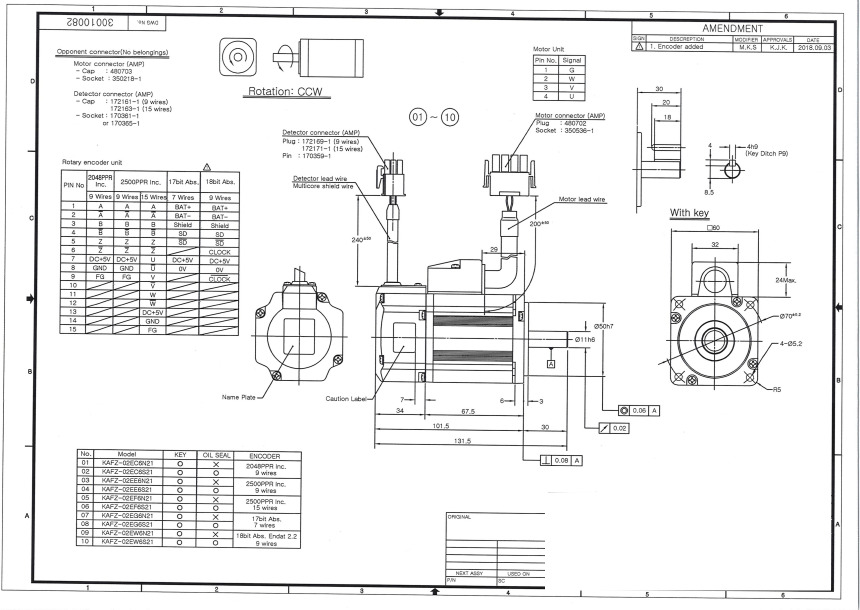
EPW17장착 서보모터 도면










실제 사진
















문의
이메일: epower2567@naver.com
대표전화: 031-430-2563~7
이동전화: 010-9321-2567
팩스: 031-430-2568




작성자
비밀번호
내용
이전글 E-POWER 소형 DC모터 연결 어댑터 - 스윙드라이브와 완벽 호환!
다음글 EPW17 스윙드라이브 적용 사례 - 무인 고하중 대차를 움직이는...